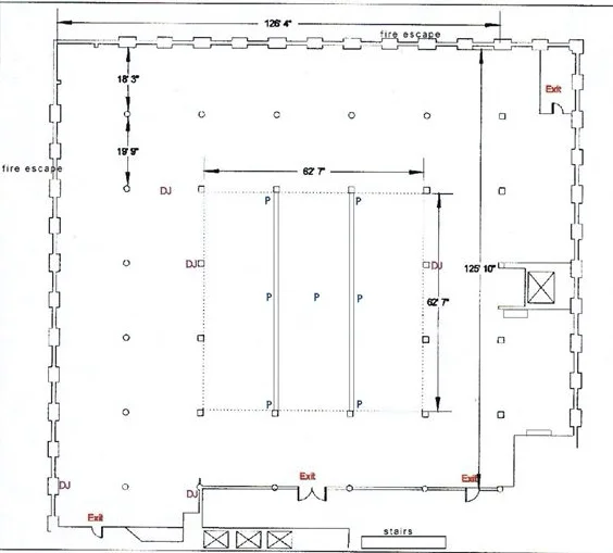
EVENT VENUE #3: DTLA Venue for Events & Filming | 15,000 SF

Tailor-made for events, filming, and stills, this 15,000 SF DTLA venue features grand 15'-25' ceilings and a range of notable amenities. The property's most distinguished feature is its exclusive roof access, which provides both stunning DTLA views for events and the rare capability for full blackout conditions, offering unparalleled creative control for filming. This dual functionality, combined with streaming daylight from floor-to-ceiling windows in the main space, creates a venue of dramatic contrasts.

Key Specifications:

  • Property ID: EVENT VENUE #3

  • Location: DTLA

  • Size: 15,000 SF

  • Ceiling Heights: 15' - 25'

  • Key Feature: Venue with Roof Access for Views & Blackout Conditions

  • Layout: Open Space, Back of the House Suites, Roof

  • Access: Freight Elevator, Roof Access, Parking

  • Core Amenities: Updated Electric, HVAC, Floor to Ceiling Windows, Streaming Daylight

Ideal Uses:

  • Film & Media: Ideal for filming, motion picture TV, commercials, and photoshoots that can leverage dramatic city views or require controlled lighting.

  • Corporate & Brand: A perfect setting for creative events like activations, product releases, premiers, corporate events, and keynotes.

EVENT VENUE #3: DTLA Venue for Events & Filming | 15,000 SF

Tailor-made for events, filming, and stills, this 15,000 SF DTLA venue features grand 15'-25' ceilings and a range of notable amenities. The property's most distinguished feature is its exclusive roof access, which provides both stunning DTLA views for events and the rare capability for full blackout conditions, offering unparalleled creative control for filming. This dual functionality, combined with streaming daylight from floor-to-ceiling windows in the main space, creates a venue of dramatic contrasts.

Key Specifications:

  • Property ID: EVENT VENUE #3

  • Location: DTLA

  • Size: 15,000 SF

  • Ceiling Heights: 15' - 25'

  • Key Feature: Venue with Roof Access for Views & Blackout Conditions

  • Layout: Open Space, Back of the House Suites, Roof

  • Access: Freight Elevator, Roof Access, Parking

  • Core Amenities: Updated Electric, HVAC, Floor to Ceiling Windows, Streaming Daylight

Ideal Uses:

  • Film & Media: Ideal for filming, motion picture TV, commercials, and photoshoots that can leverage dramatic city views or require controlled lighting.

  • Corporate & Brand: A perfect setting for creative events like activations, product releases, premiers, corporate events, and keynotes.

Previous
Previous

SKYSCRAPER #2: DTLA Diverse Downtown Venue with Helipad and Multiple Filming Spaces

Next
Next

RAINBOW EVENT VENUE: Boyle Heights Production Studio with Cyclorama | 14,500 SF